墨田区立花1丁目中古住宅

6,580万円

東京都墨田区立花1丁目30

東武亀戸線「東あずま」駅徒歩6分

総武線「亀戸」駅徒歩18分

都営新宿線「大島」駅徒歩23分

価格
6,580万円
間取り/建物面積
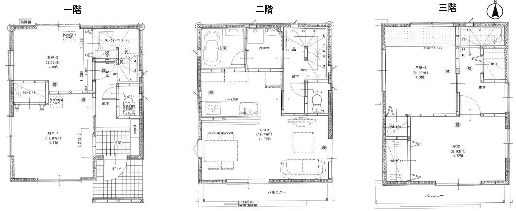
4LDK/94.39㎡
所在地
東京都墨田区立花1丁目30
築年
2014年5月(築11年)
駐車
交通

東武亀戸線東あずま」駅 徒歩6分

総武線亀戸」駅 徒歩18分

都営新宿線大島」駅 徒歩23分

墨田区立花1丁目中古住宅の基本情報

物件名
墨田区立花1丁目中古住宅
価格
6,580万円
建物面積
94.39㎡
土地面積
21.91坪(72.46㎡)
築年月
2014年5月(築11年)
総戸数
-
所在地
東京都墨田区立花1丁目30
交通

東武亀戸線東あずま」駅 徒歩6分

総武線亀戸」駅 徒歩18分

都営新宿線大島」駅 徒歩23分

墨田区立花1丁目中古住宅の詳細情報

設備条件
  • 駐輪場
  • バイク置場あり
設備(その他)
    -
駐車場/月額
有/0円
土地権利
所有権
国土法届出
不要
用途地域
準工業
取引態様
仲介
引渡し
相談
備考
香取児童遊園まで218mです。綺麗な室内の中古戸建て物件で素敵な日々をおくりませんか。快適な住環境を支えるベタ基礎の物件。駅から徒歩6分の場所に位置する物件です。東武亀戸線東あずま周辺の不動産購入を検討されるなら、まずは中央ホーム株式会社までご連絡をお待ちしております。

墨田区立花1丁目中古住宅のコメント(おすすめポイント)

香取児童遊園まで218mです。駅から徒歩6分圏内に位置する物件です。ニーズの高いベタ基礎構造になっている物件は、安全性が高く多くの方にご好評です。快適な住環境が魅力的な中古の戸建て物件で充実した日々を過ごしませんか。不動産情報を墨田区で求めるのであれば、こちらsugimoto@chuohome.comでお客様のご希望の条件をお申し付けください。

墨田区立花1丁目中古住宅で募集中の物件

  1. 28.55坪 (94.39㎡)

    6,580万円(230.47万円/坪)

周辺施設

  • 香取児童遊園の画像

    公園

    香取児童遊園

    218m(3分)

  • 墨田区立立花吾嬬の森小学校の画像

    小学校

    墨田区立立花吾嬬の森小学校

    560m(7分)

  • ユニバーサルドラッグ 立花店の画像

    ドラッグストア

    ユニバーサルドラッグ 立花店

    621m(8分)

  • サンタウン立花の画像

    ショッピングセンター

    サンタウン立花

    640m(8分)

  • 墨田区立横川さくら保育園分園の画像

    保育園

    墨田区立横川さくら保育園分園

    640m(8分)

  • ローソン 亀戸水神店の画像

    コンビニエンスストア

    ローソン 亀戸水神店

    714m(9分)

  • ダイエー立花団地店の画像

    スーパー

    ダイエー立花団地店

    720m(9分)

  •  おうちDEPO墨田文花店の画像

    ホームセンター

    おうちDEPO墨田文花店

    870m(11分)

  • ファミリーマート 亀戸四丁目店の画像

    コンビニエンスストア

    ファミリーマート 亀戸四丁目店

    874m(11分)

  • くすりセイジョー 亀戸店の画像

    ドラッグストア

    くすりセイジョー 亀戸店

    1032m(13分)

  • マックスバリュエクスプレス 亀戸センタープラザ店の画像

    スーパー

    マックスバリュエクスプレス 亀戸センタープラザ店

    1200m(15分)

  • 墨田区立吾嬬立花中学校の画像

    中学校

    墨田区立吾嬬立花中学校

    1200m(15分)

  • 亀戸中央通りクリニックの画像

    総合病院

    亀戸中央通りクリニック

    1346m(17分)

  • アトレ亀戸の画像

    ショッピングセンター

    アトレ亀戸

    1440m(18分)

  • KAMEIDO CLOCK(カメイドクロック)の画像

    ショッピングセンター

    KAMEIDO CLOCK(カメイドクロック)

    1600m(20分)

近隣の物件

  1. 墨田区向島5丁目

    3DK (70.99㎡)

    5,780万円

よく見られている物件

  1. 江戸川区松江5丁目

    4LDK (127.72㎡)

    6,880万円

  2. 江戸川区北篠崎2丁目

    3LDK+S(納戸) (108.69㎡)

    6,299万円

  3. 葛飾区東金町7丁目

    4LDK (115.71㎡)

    6,099万円

  4. 墨田区向島5丁目

    3DK (70.99㎡)

    5,780万円

墨田区立花1丁目中古住宅

お気軽にお問い合わせください

無料お問い合わせ

中央ホーム株式会社

0120224274

09:00~19:00

(休:毎週水曜日・第1、第3火曜日)